Solid Lift – Domo 125

Impressão
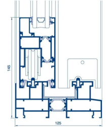
Sistema de correr e elevatório de 125mm com rotura térmica para vãos de grande porte.
Domo-125-1
Domo-125-Pormenor-630x731
Desempenho-9-1012x731
Caracteristicas-6-1012x731
Descrição

- caracteristicas
.
gerais
Sistema de de correr e elevatório mono, bi e tri-rail de 125mm com barreira térmica.
estéticas
Linhas retas.
térmicas
Transmissão térmica rompida por barras de poliamida PA66 com 25% de fibra de vidro de 24mm.
vedação
Vedação através de pelúcia stopfine, e corta-ventos no cruzamento das folhas na versão de correr e vedantes de EPDM na versão elevável.
.
- tipos de vista
.
perimetral
são de vista perimetral as janelas cujo aro fixo e aros móveis são unidos entre si em ângulos de 45º, sendo as suas larguras e alturas formadas pelos mesmos perfis.

- tipos de abertura
.
elevável ou elevatória
Considera-se de abertura elevável um sistema de correr onde, para se proceder à sua abertura, a folha é erguida ligeiramente para iniciar a marcha. Este movimento é acionado através de um mecanismo dedicado incorporado no sistema de fecho. As vantagens deste tipo de sistemas são imensas: - Na vedação - Quando fechadas, as folhas ficam apoiadas sobre vedantes, tornando a sua vedação quase hermética. - Na durabilidade - Como as folhas, quando fechadas, ficam apoiadas nos vedantes, não exercem peso sobre as rodas que, dessa forma, aumentam a durabilidade ao evitar a sua deformação. - Na facilidade de manobra - O processo de elevação liberta as folhas do atrito dos vedantes, fazendo-as deslizar apenas com simples atrito dos rolamentos. - Na dimensão do vãos - Como os rolamentos destes mecanismos estão dotados de características que lhes permitem suportar grandes pesos, possibilitam a conceção de vãos de maior dimensão.

correr
São consideradas de correr as janelas de 2 ou mais folhas de abertura deslizante em linha, isto é, abrem deslizando ao longo do vão.