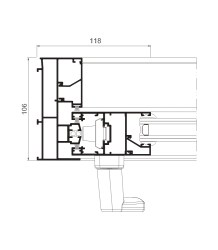
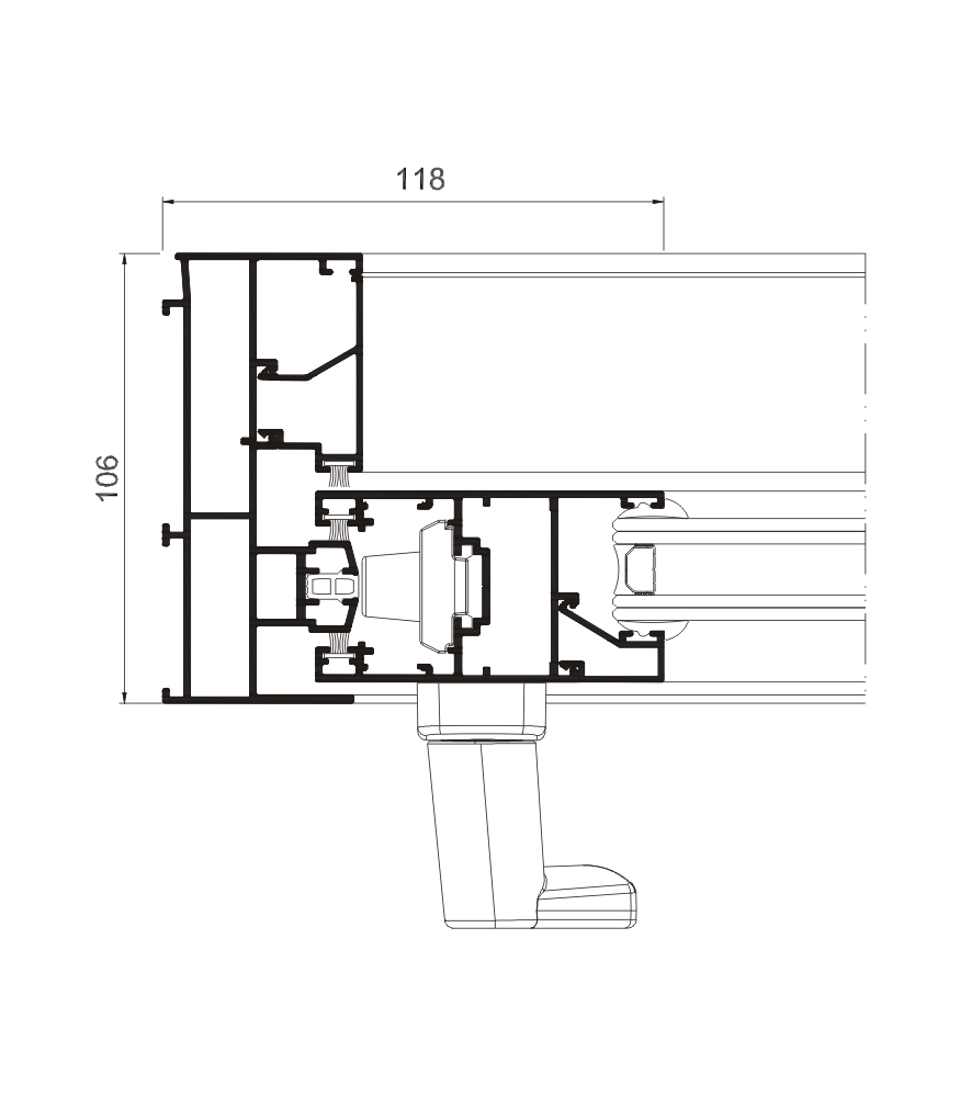
Porta Mediterrânea de Correr

Impressão
02_11 (1)
02_11
02_11z (1)
02_11z
Descrição

» Pista escondida em áreas fixas

» Folha de perímetro e moldura

» Possibilidade galandage