» sistema de porta de correr elevável que apresenta excelente desempenho térmico
» Uw de 0,9 Wm²K
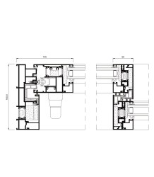
» Possibilidade nó central de apenas 50 mm
» deal para preencher grandes vãos, garantindo a máxima luminusidade
» Carril inoxidável que garante o deslizamento ultra-suave de grandes pesos