N14300

Impressão
3D_N14300_SITE_2021-02
N14300_2D
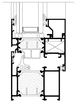
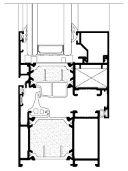
Descrição Sistema de batente com profundidade de 64 mm dos aros fixos e de 72 mm das folhas, com três câmaras. Com um coeficiente térmico Uw=1,4W/m2K (N14 300 com vista de 126 mm) pode reduzir-se significativamente o consumo de energia e consequentemente a diminuição de emissão de CO2. O aumento da profundidade dos perfis do sistema N14 300 permite a melhoria das performances funcionais, térmicas, acústicas e de segurança.